Omakotitalotontti / Pori
Lumikontie 3
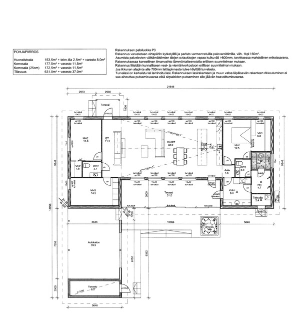
Isojoenrannalla valmiin asuinalueen keskellä tontti, johon valmiina jo rakennuslupa, joten aloittamaan pääsee nopeasti. Lupa on voimassa 2 vuotta vielä.
Sijainti
Pori, IsojoenrantaHinta
25 900,00 €Jaa kohde:
Kohdettaa välittää

Christer Vuorisalo
LKV, LVV, julkinen kaupanvahvistaja
- christer.vuorisalo@kiinteistopori.fi
- 050 547 2264
Omakotitalotontti / Pori
Lumikontie 3
Isojoenrannalla valmiin asuinalueen keskellä tontti, johon valmiina jo rakennuslupa, joten aloittamaan pääsee nopeasti. Lupa on voimassa 2 vuotta vielä.
Sijainti
Pori, IsojoenrantaHinta
25 900,00 €Listahinta
25 900,00 €Jaa kohde:
Kuvat
Kohteen tiedot
Kohteen perustiedot
| Sijainti | Pori, Isojoenranta |
|---|---|
| Maa | Suomi |
| Tyyppi | Omakotitalotontti |
| Kiinteistö | omakotitalotontti |
| Kiinteistövero | 473,14 € / vuosi |
| Huoneiden lukumäärä | ei luokiteltu |
Kohteen kuvaus
| Kiinteistötunnus | 609-18-33-2 |
|---|---|
| Energiatodistus | Ei lain edellyttämää energiatodistusta |
Tontti ja kaavoitus
| Tontin omistus | oma |
|---|---|
| Tontin pinta-ala | 859,0 m² |
| Kaavoitustilanne | Asemakaava |
Kartta
Kohdettaa välittää

Christer Vuorisalo
LKV, LVV, julkinen kaupanvahvistaja
- christer.vuorisalo@kiinteistopori.fi
- 050 547 2264
Pyydä lisätietoja kohteesta
Viesti (voit muokata viestiä halutessasi)